燃油燃气导热油锅炉,燃油燃气导热油炉,燃油燃气导热油加热炉锅炉房建议尺寸
|
燃气导热油锅炉应用于:石油化工:油___ 脂: 塑料橡胶: 皮革行业: 纺织印染: 化纤纤维: 涂装油漆: 汽车飞机: 木材加工: 林产工业: 造纸印刷: 建筑建材: 水___ 泥: 碳素工业:公路交通: 市政公路筑路: 沥青加热:空___ 调: 制药工业: 原子能工业:金属加工: 电___ 气: 食品工业: 粮油食品等工业领域。
燃气导热油锅炉工作原理:
燃气导热油锅炉 是以轻油,重油,可燃性气体为燃料,导热油为热载体,通过循环泵强制液相循环将热能输送给用热设备,换热后返回加热炉重新加热的直流式特种工业炉。
燃气导热油锅炉结构:本系列锅炉受热面结构坚凑,内外盘管串联,受热面由内、外密排的圆盘管构成,内盘管为辐射受热面,外盘管与内盘管的外表面构成对流受热面。燃料在内盘管组成的燃烧室内燃烧放热,经辐射受热面吸收大部分热量后,高温烟气进入二导程,三导程对流受热面进行换热。换热后的低温烟气出锅炉,再在空气预热器中加热燃气导热油锅炉燃烧所需的空气,再经节能装置换热降低排烟温度,达到新锅规排放要求,后低温烟气经烟囱排入大气
燃气导热油锅炉介质流向:导热油从循环泵出口进入进口集油箱由上向下经过对流段的低温区外盘管,再进入高温区辐射段的内盘管,后全部汇集至出口集箱进入主管道至用热设备换热。
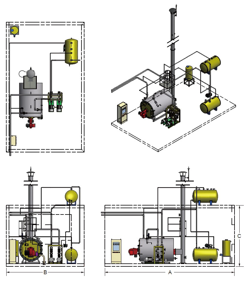
燃气导热油锅炉房建议尺寸
|
|
燃气锅炉型号 |
A mm |
B mm |
C mm |
|
10-30万大卡 |
5000 |
3500 |
3500 |
|
|
40-50万大卡 |
6500 |
5500 |
4000 |
|
|
60-80万大卡 |
7500 |
6500 |
4500 |
|
|
100-125万大卡 |
8000 |
7000 |
5000 |
|
|
150-175万大卡 |
9000 |
7500 |
6000 |
|
|
200-250万大卡 |
10000 |
8000 |
6000 |
|
|
300-350万大卡 |
11500 |
8500 |
6000 |
|
|
如用空气预热分体式燃烧器,锅炉房适当加长,以本公司平面布置图为准。 |
||||
客户如需要购买:燃气导热油锅炉,燃气导热油炉,燃气蒸汽锅炉,燃气熔盐炉,燃气熔盐加热炉,燃气热风炉,电加热导热油炉,请关注常州市上能锅炉有限公司网站产品信息(www.czrfl.cn www.rsdryl.com www.czrsgl.com )请联系热能专业人士芮总,电话:0519-82052399
请关注上能锅炉公司网站:www.czrsgl.com,www.czrfl.cn,www.rsdryl.com
相关新闻:
- 熔盐炉,熔盐加热炉,是固碱蒸发,浓缩设备中的核心装置 2024-12-17
- 熔盐炉,熔盐加热炉,是固碱蒸发,浓缩设备中的核心装置 2024-12-17
- 电加热导热油炉 2024-05-24
- 常州市上能锅炉有限公司 2024-05-24

